Home  
Map  


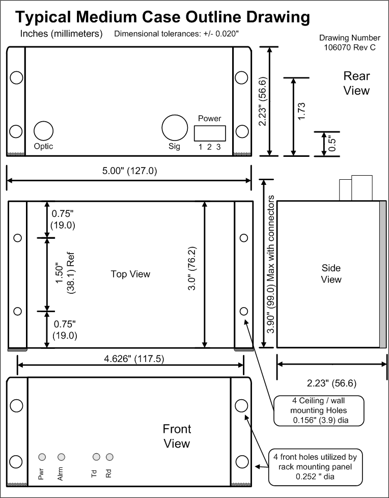
Medium Outline

GIF Version                      PDF Version

Click for GIF Version

Products with the Medium case outline occupy two position in the rack mounting panel.


 


LuxLink

Voice: 1-516-931-2800

Email:  Contact Us