Home  
Map  

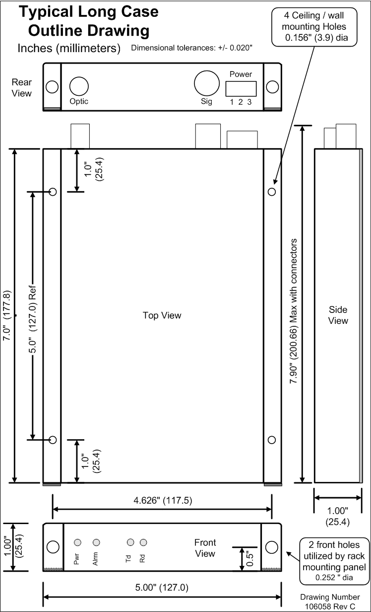
Long Case Outline

GIF Version                      PDF Version

Click for GIF Version

Products with the Long case outline occupy one position in the rack mounting panel.
Example product in this configuration is the PS-1210, 1 Amp power supply.

 


LuxLink

Voice: 1-516-931-2800

Email:  Contact Us